Gordon Road Garden Design

Gordon Road

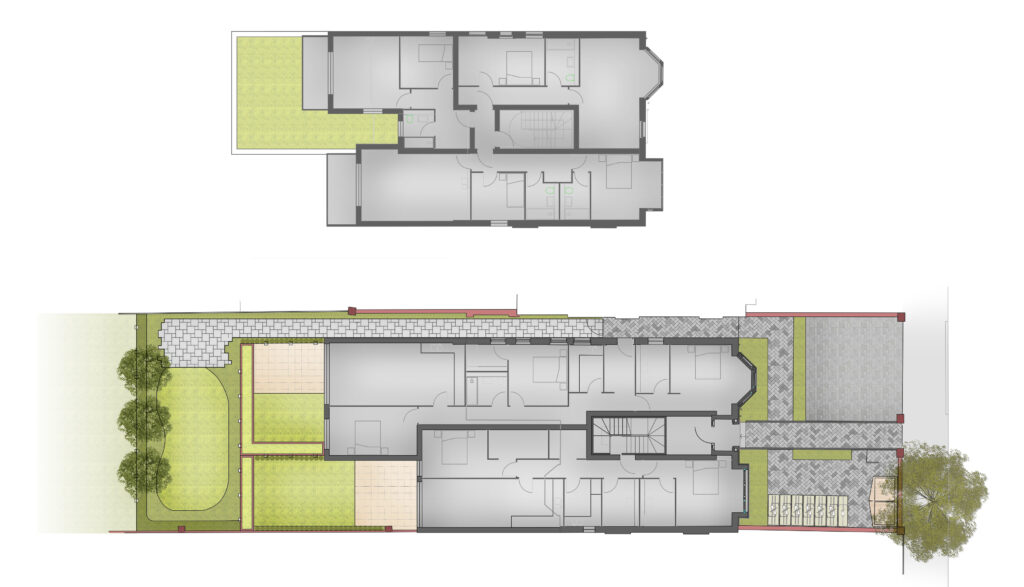
Project Overview

epd was commissioned to design the hard and soft landscaping for the front and rear gardens for the development of an existing residential building into flats.
 
epd also worked with ecologists to ensure the project generated a biodiversity net gain through the planting specified.
 
epd produced the designs, management plans and specifications to support the planning application.
gordon road design plan