G Park Stoke
Project Overview
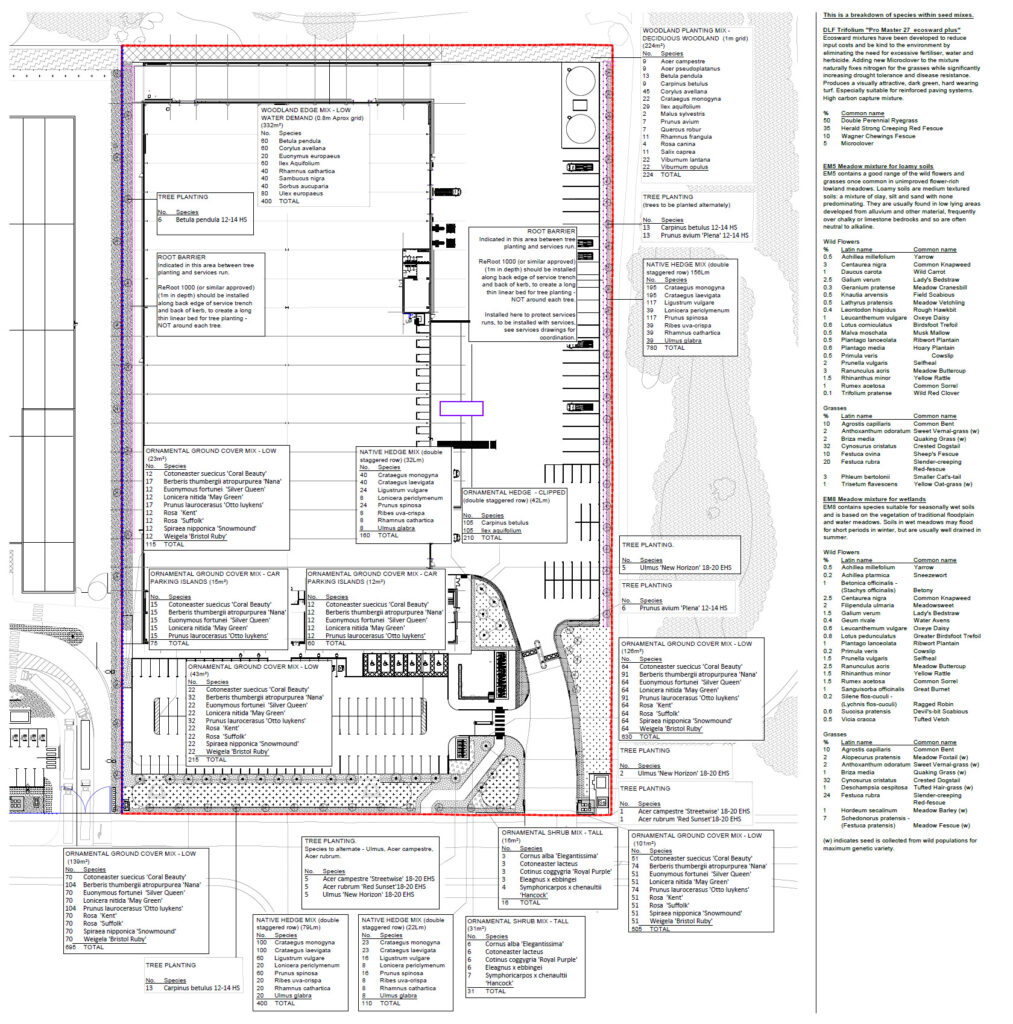
epd were commissioned to undertake the landscape design for a warehouse industrial distribution buildings and associated infrastructure including the access road in Stoke.
Collaboration and Multidisciplinary Approach:
epd worked closely with the client and all consultants as part of a large multidisciplinary team. This collaboration ensured that all aspects of the project were seamlessly integrated.
Project Phases
Inception through to handover and closeout (RIBA Stage 6): epd are involved in all stages of the scheme, from initial concept through to construction, handover and closeout. This includes:
1 detailed landscape designs and management plans for the unit and the associated infrastructure. The production of softworks and soiling specifications.
2 site supervision and signoff of the landscape works at Practical Completion (PC)
3 aftercare inspections throughout a 24 month defect period
4 signoff at the end of the defect period.
5 production of all As Built information to be handed over to the client and to form part of the health and safety file at the end of the contract.
